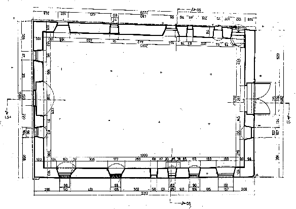
Weinsberg, Baukelter


Grundriß Erdgeschoß (1991)
Originalmaßstab 1 : 50
Zeichentechnik: Bleistift auf Folie
Meßverfahren: Einstechmessung mit Rotationslaser